
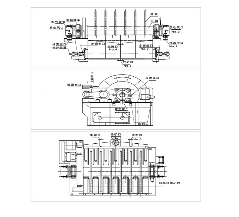
GLS系列盤式真空過濾機
(1)扇形濾板脫水孔分布均勻,孔率合理,筋條尺寸大,由高強度工程塑料制成,壽命提高了2-3倍。
(2)濾液管過濾數面大,分配頭腹腔容積大,提高了抽氣率和濾液排放效果。
(3)耐磨錦綸、單或復絲濾布使脫餅率高且不易堵塞,使用壽命長。
(4)多點干油泵集中多點自動潤滑。
(5)濾布自動清洗裝置,保持了其良好的脫水效果。
(6)臥式強制高速攪拌、軸端采用橡膠及石墨盤根和水壓差三重密封不漏漿。
(7)主傳動無級變速,依物料的濃度及流量調節(交流調速電機或變頻器),以求達到理想的工作效果 。
(8)每盤由20片扇形板組成,加強了過濾過程控制,成餅厚度均勻。
(9)磨擦片采用特制耐磨硼鑄鐵,剛柔相濟密封佳,使用壽命達到十年以上。
(10)濾液管為高強度耐磨陶瓷復合鋼管,提高壽命10倍以上。
(11)濾液管與濾扇接口去掉下法蘭,采取模具定位直接焊接,減少了90%可能的漏氣點。
盤式真空過濾機由各個單獨的扇形片的圓盤構成。每一個扇形片為 單獨的過濾單元,由濾布做成布套在扇形片上形成濾室。過濾盤由電機通過減速器及開式齒輪傳動來驅動 ,過濾盤順時針方向轉動,濾室里的礦漿在吸附區借助于真空泵在過濾介質兩側形成的壓力差,附著在過 濾盤上形成濾餅后,攪拌器旋轉防止固體沉淀,濾餅離開液面后,在真空作用下繼續脫去水分。濾液透過 濾布,經過濾液管,從分配頭排出。濾餅在卸料區由反吹風卸料落入排料槽,整個作業過程連續循環進行 。









